Leave a Message

Thank you for your message. I will be in touch with you shortly.

Explore My Properties

Property Description

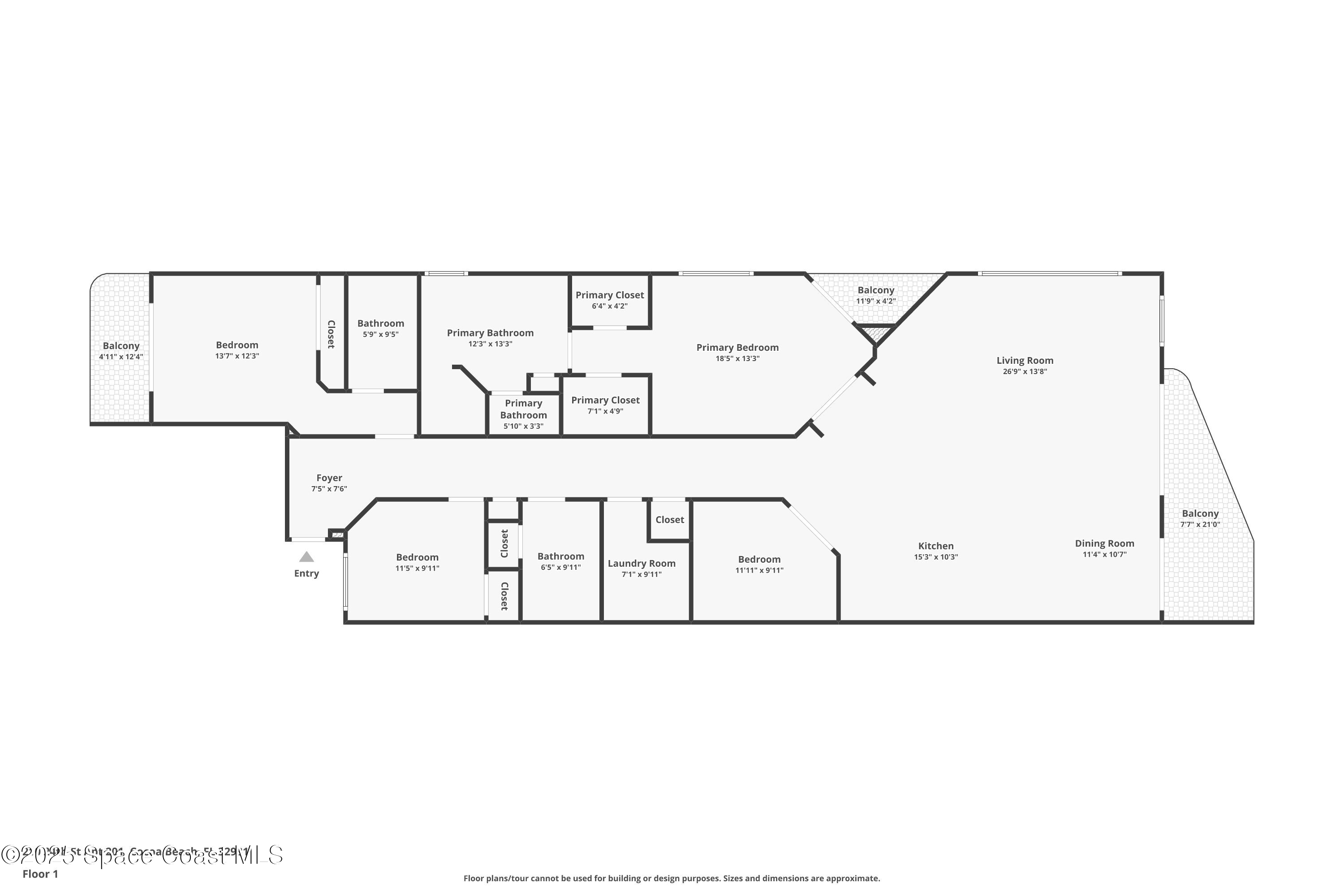
3 Bed, 3Bath + Office, South Corner Direct Condo. Dramatic panoramic views of the Banana River pull you in instantly, flooding the space with endless sky & shimmering water. Step outside & you're across the street from the beach, with front row access to both sunrise surf sessions & fiery river sunsets. Inside, hardwood floors, upgraded crown molding & an open layout w/ a central kitchen island create the perfect setting for gatherings that flow as easily as the view. With 3 beds, 3 baths & a French doored study, there is room to stretch out in style, while new impact sliders & hurricane shutters mean peace of mind comes built in. Beyond the residence, the lifestyle takes over as you dive into the pool, unwind in the spa, toast golden hour cocktails on the sunset dock, or host in the party room by the pool. When the night calls, Cocoa Beach is your playground w/ eclectic dining, live music, boutique shopping & a laid back energy that never loses its spark.

Overview

Property Status
For Sale
Lot Size
1,307 Sq.Ft.
MLS ID
1056261
Property Type
Condo
Year Built
2005

Features & Amenities

Water Frontage
Navigable Water, Ocean Access, River Access, River Front, Seawall, Intracoastal
View Description
River, Water, Intracoastal
Stories
1
Garage Spaces
2.0
Water Source
Public
Utilites
Cable Available, Electricity Connected, Sewer Connected, Water Connected
Roof
Membrane, Tile
Lot Features
Dead End Street
Parking
Attached, Garage, Garage Door Opener
Heat Type
Electric
Air Conditioning
Electric
Other Interior Features
Breakfast Bar, Ceiling Fan(s), Guest Suite, His and Hers Closets, Kitchen Island, Open Floorplan, Primary Bathroom -Tub with Separate Shower, Smart Thermostat, Other
Sewer
Public Sewer
Disability Features
Accessible Elevator Installed
HOA Amenities
Beach Access, Cable TV, Clubhouse, Elevator(s), Maintenance Grounds, Maintenance Structure, Management - Full Time, Pool, Spa/Hot Tub, Storage, Trash, Water, Other
Security Features
Secured Lobby
Other Exterior Features
Balcony, Dock, Other, Impact Windows, Storm Shutters
Elementary School
Roosevelt
Middle School
Cocoa Beach
High School
Cocoa Beach
Sales Price
$729,000
Real Estate Tax
$3,230/yr
HOA
$1,063/mo

Downloads

210 24th Street, 201, Cocoa Beach Unit: 201

Schedule a Tour

I would love to help you see this beautiful home! As a full-service brokerage, I can help you tour. Please submit an offer, and answer questions about the buying process.

Enter a valid email

Thank you

for your interest in 210 24th Street, 201, Cocoa Beach, FL 32931

back to page
210 24th Street, 201, Cocoa Beach Unit: 201
Navigate
210 24th Street, 201, Cocoa Beach Unit: 201
explore in 3d

Mortgage Calculator

Estimate your monthly mortgage payment, including the principal and interest, property taxes, and HOA. Adjust the values to generate a more accurate rate.
$0,000 Your Payment 20 15 65
$0,000 Your Payment

I'm Interested In

210 24th Street, 201, Cocoa Beach Unit: 201

or
  • CallAlyssa Boyd

    License #3013773

    (321) 591-7585
  • Featured Properties

    • 2375 S Atlantic Avenue, 601 Active Under Contract

      $3,299,000

      2375 S Atlantic Avenue, 601, Cocoa Beach, FL 32931

      • 5 Beds
      • 6 Baths
      • 6,005 Sq.Ft.
    • 3500 S Atlantic Avenue, 102-2nd Floor For Sale

      $989,900

      3500 S Atlantic Avenue, 102-2nd Floor, Cocoa Beach, FL 32931

      • 3 Beds
      • 4 Baths
      • 2,540 Sq.Ft.
    • 106 4th Avenue For Sale

      $849,900

      106 4th Avenue, Indialantic, FL 32903

      • 3 Beds
      • 3 Baths
      • 2,540 Sq.Ft.
    • 210 24th Street, 201, Cocoa Beach Unit: 201 For Sale

      $729,000

      210 24th Street, 201, Cocoa Beach, FL 32931

      • 3 Beds
      • 3 Baths
      • 2,160 Sq.Ft.
    • 729 Kenwood Circle For Lease

      $3,000/mo

      729 Kenwood Circle, Melbourne, FL 32940

      • 3 Beds
      • 2 Baths
      • 2,209 Sq.Ft.
    View All Properties

    Follow Us On Instagram